


























| Boligydelse | - |
| Varmeudgift | 860 |
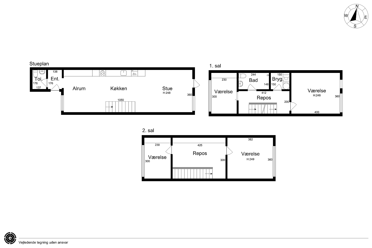
| Boligareal | 134 m² |
| Værelser | 5 |
| Antal plan | 3 |
| Byggeår | 2005 |
| Husdyr tilladt | Ja |
| Fremleje tilladt | Ja |
| Sagsnummer | RS3200 |
| Ejendomstype | Andelsbolig |
| Energimærke |
![]() ![]() |
| Boligafgiften | 8.292 |
| Fællesantenne | 367 |
| Boligydelse i alt | 8.659 |
| Maksimalpris | - |
| Anslået teknisk pris | - |
| Andelens fordelingstal | 3,47 % |
| Enhedens del af gælden | - |
| Foreningen: | |
| Samlet gæld | - |
| Boligenheder | 40 |
| Erhvervsenheder | 0 |


