
























| Udbetaling | - |
|
Brutto i |
- |
|
Netto i |
- |
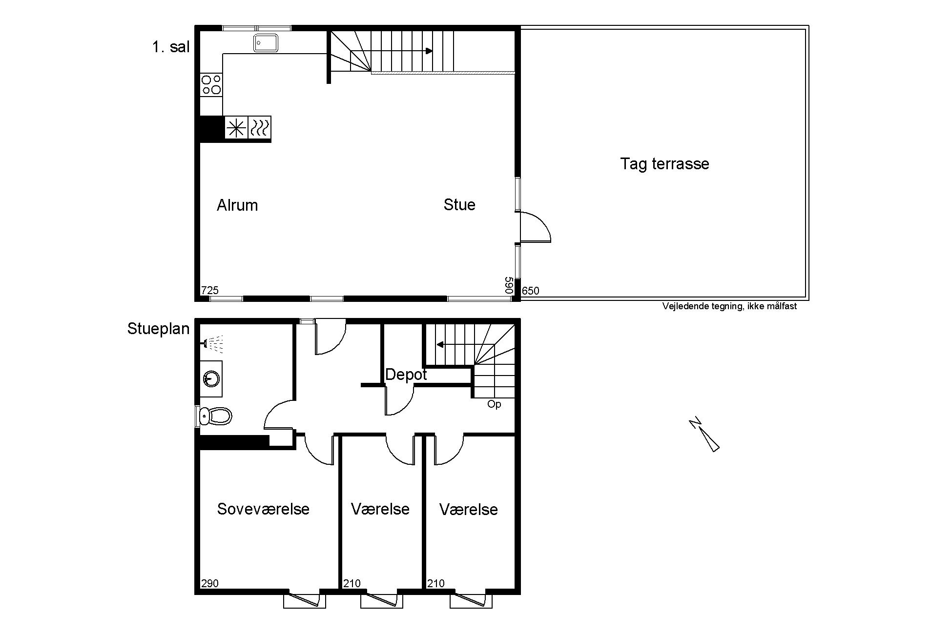
| Boligareal | 108 m² |
| Værelser | 3 |
| Antal plan | 2 |
| Byggeår | 2004 |
| Altan | Ja, 46 m² |
| Sagsnummer | BH0495 |
| Ejendomstype | Ejerlejlighed |
| Energimærke |
![]() ![]() |
| Ejendomsskat | 153 |
| Ejendomsværdiskat | 1.248 |
| Renovation | 219 |
| Ejerforening | 367 |
| Husforsikring | 164 |
| Ejerudgifter i alt | 2.149 |


